Обратный звонок
г. Москва, ул. Малая Семеновская, 3Ас1
Консультации в офисе по записи
Баня из бруса 6x6
Баня из бруса 6x6
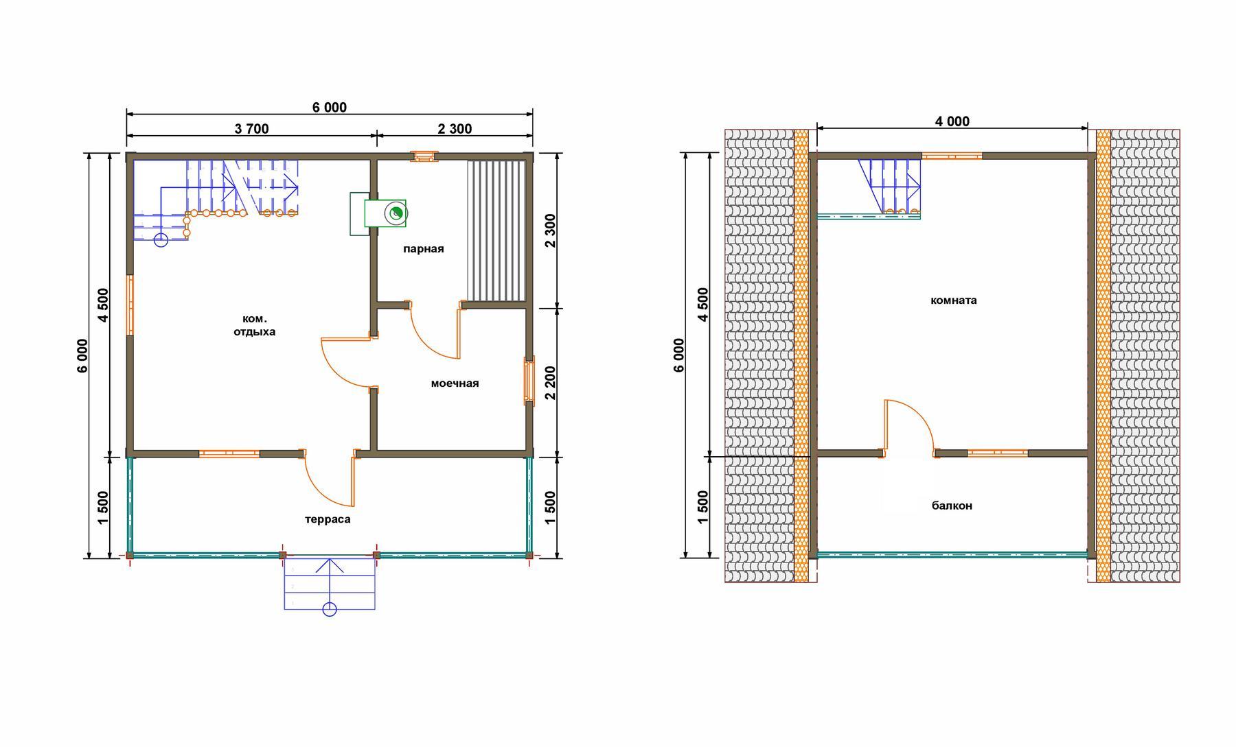
Баня из бруса 6x6 - планировка первого этажа
Баня из бруса 6x6 - планировка второго этажа
Баня из бруса 6x6 - фотография слева
Баня из бруса 6x6 - фотография справа
Баня из бруса 6x6 - фотография сзади
Баня из бруса 6x6 - схема

Баня из бруса 6x6 «Всеволожск»

Общая площадь
60 м²
Парная
4.6 м²
Кол-во комнат
2
Терраса
8 м²
Под усадку
от 636 000 руб Что входит в стоимость?

С отделкой
от 1 113 000 руб Что входит в стоимость?
Рассчитать стоимость
✅  Работаем
Без предоплаты
🕝  Срок строительства
от 10 дней
📑  Строим
В кредит
Баннер об акции
Видео о компании от основателя
Видео о компании от основателя
Как самостоятельно рассчитать стоимость бани?
Как самостоятельно рассчитать стоимость бани?
Далее вы можете самостоятельно рассчитать итоговую стоимость проекта, собрав комплектацию и выбрав адрес доставки
Шаг 1/4

Выберите брус

Что выбрать?
Брус 140x90
Под усадку, без отделки
140x90
Для эксплуатации с весны по осень. Усадка 6-12 месяцев
636 000 руб
Выбрать
Выбрать
636 000 руб
Брус 140х140
Под усадку, без отделки
140x140
Для эксплуатации в любое время года. Усадка 6-12 месяцев
752 000 руб
Выбрать
Выбрать
752 000 руб
Брус 140х190
Под усадку, без отделки
140x190
Подходит для регионов с суровым климатом. Усадка 6-12 месяцев
914 000 руб
Выбрать
Выбрать
914 000 руб
Брус 140x90
С отделкой из бруса камерной сушки
140x90
Подходит для эксплуатации в период с весны по осень
1 113 000 руб
Выбрать
Выбрать
1 113 000 руб
Брус 140x140
С отделкой из бруса камерной сушки
140x140
Подходит для эксплуатации в любое время года
1 240 000 руб
Выбрать
Выбрать
1 240 000 руб
Брус 140x190
С отделкой из бруса камерной сушки
140x190
Подходит для регионов с суровым климатом
1 429 000 руб
Выбрать
Выбрать
1 429 000 руб
Шаг 2/4

Выберите фундамент

Что выбрать?
Фундамент свайно-винтовой (кол-во свай: {{91932346}})
Кол-во свай: 16
Свайно-винтовой
Для любого типа объектов. Оптимальное соотношение цена-качество
80 000 руб
Выбрать
Выбрать
80 000 руб
Фундамент железобетонные сваи (кол-во свай: {{91932346}})
Кол-во свай: 16
Железобетонный
Самый надежный вариант. Обладает сроком службы до 150 лет
96 000 руб
Выбрать
Выбрать
96 000 руб
Шаг 3/4

Соберите комплектацию

Переключайтесь по вкладкам для просмотра и редактирования всех разделов комплектации
Сруб
Кровля
Терраса
Дополнения
Высота потолка 16 венцов (2,07м ± 5см)
Высота потолка 17 венцов (2,20м ± 5см)
Что это? ✔ рекомендуем
+ 21 400 руб
Высота потолка 18 венцов (2,35м ± 5см)
+ 42 700 руб
Высота потолка 19 венцов (2,45м ± 5см)
+ 64 100 руб
Высота потолка 20 венцов (2,60м ± 5см)
+ 85 400 руб
Читать подробнее
Высота потолка мансарды 2.3м
Профиль бруса несущих стен - прямой
Профиль бруса несущих стен - овал
Сборка углов в теплый угол шип-паз
Перегородки брус профилированный 140х90мм естественной влажности, профиль прямой
Читать подробнее
Утепление джут
Утепление холлофайбер
✔ рекомендуем
+ 9 200 руб
Сборка сруба на гвозди
Сверловка под гвозди
Что это?
+ 33 000 руб
Сборка 6 нижних венцов сруба на нагеля. Сборка верхних венцов сруба на "Пружинный узел сила" (оригинал).
✔ рекомендуем
+ 96 000 руб
Сборка сруба на "Пружинный узел сила" (оригинал)
+ 123 200 руб
Читать подробнее
Нижняя обвязка в 2 ряда. Первый ряд 150x150. Второй ряд 150x100
Лаги пола 50х150 (в срубе, шаг 59 см)
Лаги пола из бруса 100х150 (в срубе, шаг 59 см)
✔ рекомендуем
+ 21 000 руб
Лаги пола из бруса 50х200 (в срубе, шаг 59 см)
Что это?
+ 21 000 руб
Читать подробнее
Черновой пол доска 20х100 мм, сорт 1/2
Стропило доска 40x150мм.
Защитная металлическая сетка от грызунов
+ 9 500 руб
Обработка нижнего венца и лаг пола антисептиком в один слой
✔ рекомендуем
+ 12 300 руб
Обработка чернового пола антисептиком в один слой
+ 12 300 руб
Читать подробнее
Покраска и обработка бани снаружи в один слой (Bioteks, Акватекс, Mokke)
+ 39 000 руб
Покраска и обработка бани снаружи в два слоя (Bioteks, Акватекс, Mokke)
+ 78 000 руб
Читать подробнее
Покраска углов сруба
Отделка углов сруба - имитация бруса или доска строганная
Размер парной в чистоте 2,1х2,1м
Дверной проем для входной двери 2.00х0.88м
Дверные проемы для межкомнатных дверей 2.00х0.88м
Дверной проем в мойку 1.8х0.7м
Дверной проем в парную 1.8х0.7м
Дверной проем в санузел 2.00х0.66м
Форма крыши Двухскатная
Высота конька 3.2 м
Читать подробнее
Ондулин
Выбранный цвет: Красный
Черепица ондулин NEW
+ 25 800 руб
Профилированный лист 0.45мм МП 20
+ 104 500 руб
Профилированный лист (матовый) 0.45мм МП 20
+ 119 300 руб
Профилированный лист 0.5мм МП 20
+ 142 500 руб
Профилированный лист (матовый) 0.5мм МП 20
+ 157 400 руб
Металлочерепица 0.45мм
+ 120 600 руб
Металлочерепица (матовая) 0.45мм
+ 135 500 руб
Металлочерепица 0.5мм
✔ рекомендуем
+ 163 200 руб
Металлочерепица (матовая) 0.5мм
+ 178 000 руб
Мягкая кровля Shinglas Оптима
+ 238 700 руб
Мягкая кровля Shinglas Финская
Что это?
+ 238 700 руб
Установка комплекта трубчатого снегозадержателя «Универсальный»
+ 26 400 руб
Монтаж водосточной системы ПВХ "DOCKE"
✔ рекомендуем
+ 21 600 руб
Читать подробнее
Ширина карниза по периметру 36см
Ширина карниза по периметру 45см
✔ рекомендуем
+ 13 200 руб
Ширина карниза по периметру 54см
+ 22 800 руб
Отделка карнизов евровагонка
Отделка карнизов софиты
✔ рекомендуем
+ 42 100 руб
Отделка фронтона евровагонка
Отделка фронтона имитация бруса
+ 24 700 руб
Отделка фронтона блок хаус
+ 33 800 руб
Обноска крыши по периметру доска строганная или имитация бруса (без покраски)
Обноска крыши по периметру доска строганная или имитация бруса (с покраской)
Отделка цоколя фундамента профилированный лист, высота цоколя 30-50 см
+ 48 000 руб
Отделка цоколя фундамента фасадная панель (Fineber, Grand Line), высота цоколя 40 см
+ 60 000 руб
Отделка цоколя фундамента фасадная панель (Fineber, Grand Line) , высота цоколя 60-80 см
+ 98 400 руб
Лаги пола с шагом 50 см
Обвязка аналогично устройству сруба
Опорные столбы из бруса (строганый с 4-х сторон) 100х150
Без ограждений и чернового пола
Бытовка для проживания бригады 2x3 эконом (кровля оцинкованный профлист, вагонка сорт BC, отделка оргалит)
+ 33 000 руб
Туалет садовый эконом (кровля оцинкованный профлист, вагонка сорт B)
+ 24 000 руб
Аренда генератора 2.8-3.2 кВт (Горюче-смазочные материалы за счет заказчика)
+ 15 000 руб
Стол переносной 600х1000мм
-
0 шт
+
Лавка переносная 400х1200мм
-
0 шт
+
Камни банные Габбро-диабаз 20кг
-
0 шт
+
Шаг 4/4

Рассчитайте стоимость доставки

Рассчитать
Итоговая стоимость:
636 000 рублей
Сгенерировать КП
Купить баню
Итоговая стоимость: 636 000 рубИтого: 636 000 руб
Зафиксировать стоимость бани

Этапы работы

1
Согласуем
Подберем проект, согласуем комплектацию и утвердим договор
2
Доставим
Доставим материал и выгрузим его на ваш участок без предоплаты
3
Подпишем
Подпишем договор на вашем участке и получим оплату в размере 70%
4
Построим
Проведем перечень строительных и отделочных работ
5
Сдадим
Подпишем акт сдачи-приемки деревянного строения
6
Рассчитаемся
Получим оставшиеся 30% от стоимости работ
Узнать подробнее

Выполненные проекты

Видеообзоры бань из бруса

Баня из бруса 6х6
Баня из бруса 6х6
Баня из бруса 4х7
Баня из бруса 4х7
Баня из бруса 4х5
Баня из бруса 4х5
Баня из бруса 4х6
Баня из бруса 4х6
Баня из бруса 4х6
Баня из бруса 4х6
Баня из бруса 4х9
Баня из бруса 4х9
Баня из бруса 4х5
Баня из бруса 4х5
Баня из бруса 4х6
Баня из бруса 4х6
Баня из бруса 6х6
Баня из бруса 6х6
Баня из бруса 3х6
Баня из бруса 3х6
Баня из бруса 4х4
Баня из бруса 4х4
Баня из бруса 6х6
Баня из бруса 6х6
Баня из бруса 3х4
Баня из бруса 3х4
Баня из бруса 4х6
Баня из бруса 4х6
Баня из бруса 6х8
Баня из бруса 6х8
Баня из бруса 7х8
Баня из бруса 7х8

Отзывы клиентов

Видеоотзывы клиентов на бани из бруса

Отзыв о бане из бруса
Отзыв о бане из бруса
Отзыв о бане из бруса
Отзыв о бане из бруса
Отзыв о бане из бруса
Отзыв о бане из бруса
Отзыв о бане из бруса
Отзыв о бане из бруса
Отзыв о бане из бруса
Отзыв о бане из бруса
Отзыв о бане из бруса
Отзыв о бане из бруса
Отзыв о бане из бруса
Отзыв о бане из бруса
Отзыв о бане из бруса
Отзыв о бане из бруса
Отзыв о бане из бруса
Отзыв о бане из бруса
Отзыв о бане из бруса
Отзыв о бане из бруса
Отзыв о бане из бруса
Отзыв о бане из бруса
Отзыв о бане из бруса
Отзыв о бане из бруса
Отзыв о бане из бруса
Отзыв о бане из бруса
Отзыв о бане из бруса
Отзыв о бане из бруса
Отзыв о бане из бруса
Отзыв о бане из бруса
Отзыв о бане из бруса
Отзыв о бане из бруса
Отзыв о бане из бруса
Отзыв о бане из бруса
Отзыв о бане из бруса
Отзыв о бане из бруса

Часто задаваемые вопросы

О компании
Производственная часть и головной офис находится в г. Пестово, Новгородская область. Именно от туда выезжают наши бригады и машины со стройматериалами на адрес заказчика. О нас и нашей команде подробнее можно почитать тут.
Строительство бань мы осуществляем в Москве и Московской области, а также в других регионах в радиусе 1000км от г. Пестово, Новгородской области. 
Да, конечно! В 95% cлучаев договора мы заключаем дистанционно. После согласования проекта мы попросим прислать вас паспортные данные на почту или в вотсап. После чего вышлем вам для ознакомления итоговую версию договора, а подпишем его уже у вас на участке непосредственно перед началом строительства. 
Да, мы работаем круглый год! Минусы строительства зимой - это необходимость расчистить снег на участке и короткий световой день, из-за чего срок строительства немного увеличивается. Т.е критичных проблем нет никаких, от слова совсем! 
Нет, выставочного центра у нас нет, но есть фотоотчеты и видеообзоры построенных объектов. Мы решили не делать выставочный центр, поскольку это дополнительные издержки, которые приведут к повышению цен на строительство, а нам хочется, чтобы бани были доступны как можно большему кол-ву людей. Если хочется посмотреть проекты вживую, вы можете приехать к нам на строящийся объект или мы попробуем договориться о визите к нашим клиентам, которым уже построили баню. 
Шаг 1 - выбрать на сайте интересующий проект бани
Шаг 2 - оставить заявку
Шаг 3 - обсудить комплектацию проекта с нашим менеджером
Шаг 4 - получить предложение с итоговой стоимостью проекта
Шаг 5 - получить договор и изучить его
1.  Большой выбор проектов бань на любой вкус и бюджет
2. Удобный сайт, в который мы вложили много сил, чтобы вам было удобно
3. Собрали команду профессионалов из строителей проверенных временем
4. Работаем только с качественными и безопасными строительными материалами
5. Соблюдаем сроки за счет отлаженных годами процессами работы
6. Собрали опытных менеджеров, которые помогут вам определиться с комплектацией проекта, чтобы потом вы не пожалели
7. Наш главный принцип работы - строим для клиента так, как хотели бы, чтобы построили нам самим.
Об оплате
Мы работаем без предоплаты. Оплата происходит по факту доставки строительных материалов на ваш участок - 70%, остальные 30% по факту сдачи объекта и подписания акта приёмки-сдачи объекта. Подробнее на странице условий оплаты
Оплата производится на выбор: наличными, безналичными по счету, с помощью материнского капитала или кредита. Подробнее об условиях оплаты
Да! Специально для удобства наших клиентов мы заключили договор с Почта Банком и Локо банком для выдачи кредитов на самых выгодных условиях. Подробнее о кредите можете узнать тут. 
Да, построить баню можно за счет материнского капитала. Для этого вам необходимо заключить с нами договор на строительство и отнести его в ПФР или МФЦ для одобрения. 
Стоимость доставки рассчитывается за километраж от города Пестово. Подробнее ознакомиться и рассчитать стоимость доставки можно на странице условия доставки или на странице конкретного проекта бани.
Итоговая стоимость зависит от выбранной комплектации проекта и адреса строительства. При желании вы можете рассчитать итоговую стоимость самостоятельно, зайдя на интересующий вас проект, выбрав желаемую комплектацию и указав адрес строительства. 
Да, мы тщательно за этим следим и своевременно их обновляем. Смело рассчитывайте стоимость, цены актуальны!
Мы хотим чтобы каждый человек смог осуществить свою мечту, поэтому цены не завышаем, следим за тем, чтобы они были среднерыночные. Если вам предлагают ту же самую баню, но дешевле, нужно сравнивать комплектации. С большой вероятностью вам за меньшие деньги предлагают проект похуже. Мы всегда просим отправить нам для сравнения предложения от другой компании. Если комплектации действительно одинаковые, можете быть уверены, что мы построим дешевле!
О бригаде
Все наши работники славянской внешности граждане РФ из Новгородской области, в основном из Пестовского района. Но надо сказать, мы не делим людей по национальному признаку и ко всем относимся с уважением.
В зависимости от сложности и размера объекта. Как правило бригады от 2 до 4 человек.
Бригады у нас постоянные и проверены временем, работают с нами на постоянной основе многие годы. Когда клиенты оставляют отзыв о нашей работе, всегда отмечают, что наши строители очень понравились. Можете ознакомиться с отзывами тут 
О гарантии
Да, мы даем гарантию сроком на 3 года. Гарантийные обязательства вступают в силу с момента полной оплаты договорной стоимости, при условии соблюдения «Заказчиком» правил эксплуатации строения. Правила эксплуатации подробно прописаны в договоре.
Гарантия распространяется на протекание кровли, на целостность конструкции, на установку печи с соблюдением всех норм.
Гарантийные обязательства не распространяются:

- на ущерб, вследствие неправильной эксплуатации строения заказчиком.
- на строительные материалы, приобретаемые заказчиком самостоятельно.
- если заказчик, в течение действия гарантийного срока изменяет конструкцию изделия.
1. Растапливать печь легковоспламеняющимися жидкостями - бензин, керосин.
2. Находиться в изделии в состоянии алкогольного опьянения.
3. Оставлять без надзора горящую печь, а также поручать надзор малолетним детям.
4. Разогревать трубы дымохода печи до красного цвета.
5. Высыпать вблизи строений непогашенные угли или золу.
6. Применять не разрешенные к использованию виды топлива.
7. Применять дрова, длина которых превышает размер топки.
8. Топить печь с открытой дверцей.
9. Оставлять воду в баке после использования.
10. Сушить дрова, одежду и другие сгораемые предметы на печи или около нее.
11. Хранить в помещении дрова в количестве, превышающем потребность для разового использования изделия.
12. Вносить изменения в конструкцию изделия и её оборудование.
13. Топить банную печь без воды.
1. Перед использованием изделия по назначению, необходимо протопить печь, не менее двух раз для обеспечения выветривания составов, которыми обработана печь. Будьте внимательны, без воды в баке печь топить нельзя. После этого необходимо проветрить сооружение.
2. После каждого использования изделия необходимо обеспечивать сквозное проветривание: открывать окна, двери и отдушину для проветривания на 4-5 часов минимум.
3. Для топки печи используйте сухие дрова или древесные топливные брикеты.
4. При нахождении в парной необходимо соблюдать меры предосторожности, связанные с нагретыми поверхностями печи, дымохода и бака для нагрева воды.
5. Не оставляйте детей без присмотра и не разрешайте им топить печь.
6. Прочищайте и проверяйте на прогорание дымоход не реже 1-го раза в 3 месяца.
О проектах
Да, изменения вносить возможно. Можно передвинуть перегородки, переставить окна и двери. Также вы можете увеличить или уменьшить размеры нашего проекта. Все обсуждается, все возможно!
Да, можно, присылайте ваш проект к нам на почту info@brus-bany.ru или в вотсап. Вы можете нарисовать схему проекта от руки и в свободной форме текстом написать ваши пожелания. 
Да, конечно! Отправьте нам ссылку на интересующий вас проект, мы оперативно сделаем для вас расчет стоимости. 
О строительстве
В среднем от 3 до 20 дней. Время, необходимое для строительства, напрямую зависит от сложности проекта, выбранной комплектации и погодных условий.
1. Подготовить площадку под строительство. Очистить ее от всего ненужного: снега, кустов, деревьев и т.д.
2. Необходимо подготовить место для проживания бригады. Если это не предоставляется возможным, мы построим у вас на участке бытовку 2х3 метра, которая после строительства останется у вас.
3. На участке для работы необходимо электричество. Если это не предоставляется возможным, мы привезем генератор в аренду. В таком случае вам необходимо предоставить горюче-смазочные материалы.
4. Организовать наличие питьевой воды для бригады.
5. Предупредить нас заранее, если на ваш взгляд машина со стройматериалами не сможет подъехать к вашему участку. 
Да, это возможно! Детали обсуждаются с каждым клиентом индивидуально. 
Да, это возможно! Детали обсуждаются с каждым клиентом индивидуально. 
Да, мы занимаемся демонтажом старых сооружений!
Нет, строительством пристроек к каким-либо сооружениям мы не занимаемся.
О комплектации проекта
На странице проекта бани в разделе "Соберите комплектацию" мы подсветили галочкой "Рекомендуем" те дополнения, которые на наш взгляд как минимум стоит выбрать. Если вопрос экономии у вас не стоит, то конечно выбирайте все самые дорогие пункты - это будет самая лучшая комплектация соответственно. Чтобы не ошибиться, оставьте заявку, чтобы наш специалист помог вам собрать комплектацию бани.
Нужно определиться:
1) Если хотите получить баню под ключ с отделкой, то необходимо выбирать сухой брус камерной сушки
2) Если вы не спешите и готовы сначала получить баню без отделки под усадку, то выбирайте сырой брус
3) Если планируете эксплуатировать баню зимой, выбирайте размер бруса 140х140 или 140х190
4) Если зимой баню не будете эксплуатировать, то выбирайте размер 140х90
1) Для большинства проектов подойдет свайно-винтовой фундамент. Он достаточно долговечен, надежен и экономичен.
2) Для маленьких строений подойдет опорно-столбчатый фундамент. Он самый дешевый.
3) Для тяжелых и очень больших сооружений следует рассмотреть железобетонный фундамент. Он самый дорогой и самый надежный. 
У нас печи из стали и чугуна. Выбирайте печь из чугуна, если хотите чтобы она прослужила вам очень долго. 
Электрика входит в стоимость только готовых бань. При условии строительства бани на участке заказчика плотники не делают электрику.
Нет, унитазы и раковины мы не устанавливаем, но при строительстве объекта учтем, что вы планируете это сделать!

Похожие проекты

Заказать обратный звонок
Поможем с выбором проекта, обсудим комплектацию и отправим смету с итоговой ценой до рубля
Мы онлайн!
Расчет за 5 минут!